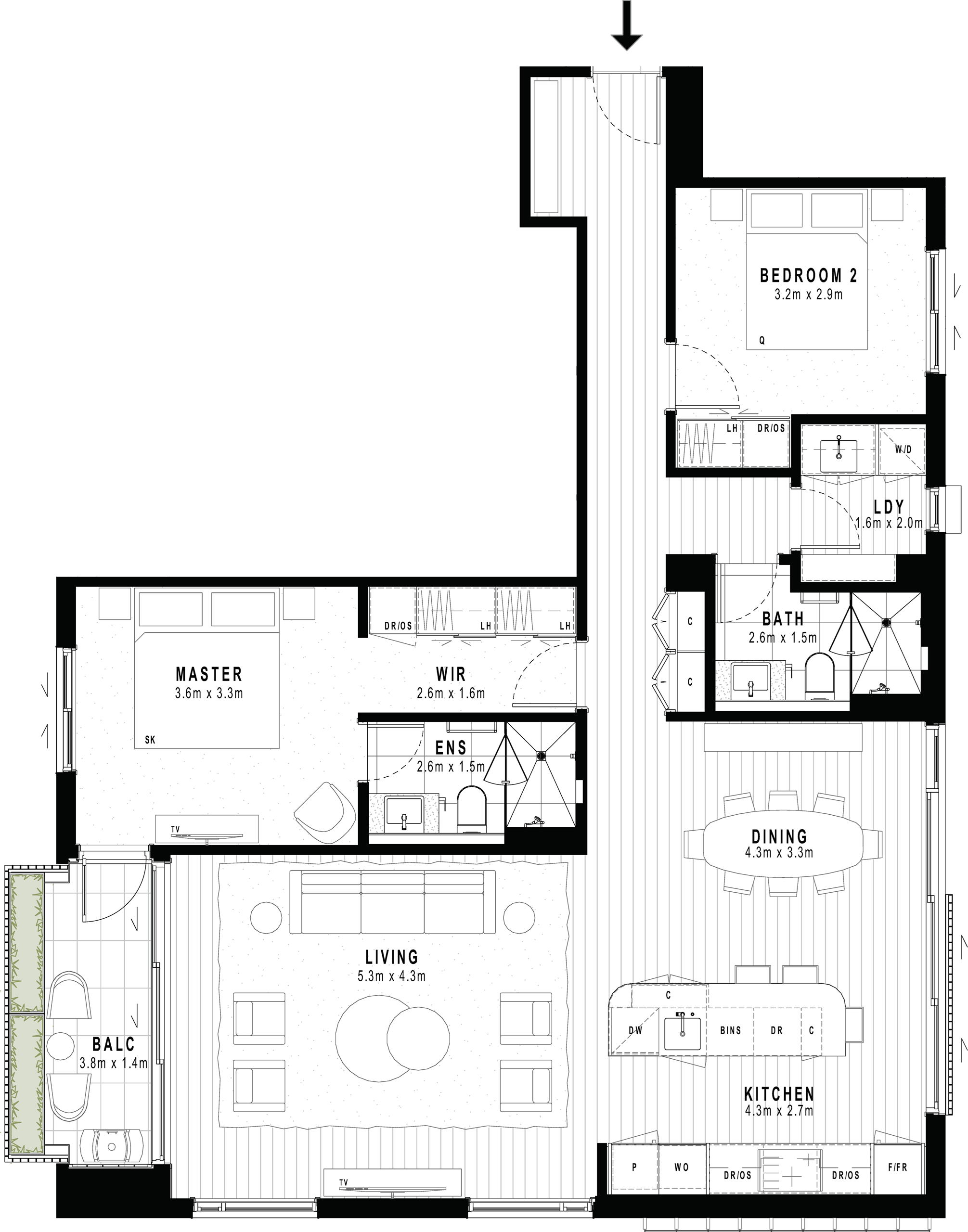
Apartment 101
SOLD

Apartment 101

Morning and afternoon sun from this quiet apartment with views of the reserve.
  • Area internal 112m2
  • Area external 7m2
  • Bedrooms 2
  • Bathrooms 2
  • Lounges 1
  • Carparks 2

A spacious and quiet elevated two-bedroom apartment with a triple-aspect. The morning sun streams in across peaceful Wairua reserve for breakfast at the kitchen island with a green outlook. Afternoon sun bathes the balcony, living room and master bedroom. The master bedroom has direct access to the balcony and is tucked away for peace and privacy. Natural light into the spacious laundry is a pleasant surprise.

  • Two bedrooms and two bathrooms
  • Triple-aspect open-plan living
  • Quiet, private balcony area
  • A large walk-in laundry
  • Elevated views of the reserve
  • Secure parking for two cars
  • One secure storage locker
* All images are indicative only, and may not represent the actual interior of the apartment listed.
Get the Apartment Details

Each apartment at Wairua is unique.

Explore Other Apartments